Lompat ke konten Lompat ke sidebar Lompat ke footer

Contoh Perjanjian Jual Beli Rumah Cash Bertahap - Contoh Surat Perjanjian Jual Beli Rumah Dengan Pembayaran Bertahap Berbagai Contoh : Surat perjanjian jual beli rumah cash bertahap contoh perjanjian jual beli rumah cash bertahap bila ingin mendownload contoh surat .

Doc perjanjian pengikatan jual beli . Surat perjanjian jual beli rumah pdf free download. Berbeda isi surat perjanjian untuk kredit dan tunai. Maka perlu disimak lebih lanjut dalam artikel ini, mengenai surat perjanjian jual beli rumah bertahap . Sebelum mempelajari bagaimana prosedur dan contoh surat perjanjian jual beli rumah cash bertahap, berikut adalah keuntungan yang didapat jika melakukan .

Di contoh surat pernyataan jual beli tanah, cantumkan juga tanggal . A Perjanjian Sewa Menyewa
A Perjanjian Sewa Menyewa from cdn.slidesharecdn.com
Berbeda isi surat perjanjian untuk kredit dan tunai. Contoh surat perjanjian jual beli tanah pembayaran bertahap. Surat perjanjian jual beli rumah cash bertahap contoh perjanjian jual beli rumah cash bertahap bila ingin mendownload contoh surat . Jalin komunikasi yang baik dengan developer/pengembang · jangan lupa membayar booking fee · lakukan kesepakatan pra perjanjian jual beli (ppjb) . Penerimaan uang tanda jadi dari konsumen · penandatanganan perjanjian pengikatan jual beli (ppjb) · surat perintah kerja (spk) pembangunan unit rumah kepada . Surat perjanjian jual beli rumah pdf free download. Di contoh surat pernyataan jual beli tanah, cantumkan juga tanggal . Maka perlu disimak lebih lanjut dalam artikel ini, mengenai surat perjanjian jual beli rumah bertahap .

Penerimaan uang tanda jadi dari konsumen · penandatanganan perjanjian pengikatan jual beli (ppjb) · surat perintah kerja (spk) pembangunan unit rumah kepada .

Di contoh surat pernyataan jual beli tanah, cantumkan juga tanggal . Surat perjanjian jual beli rumah pdf free download. Tunai, dicicil, atau secara kredit pemilikan rumah (kpr). Apabila pembayaran dilakukan dengan cek atau giro, pembayaran baru . Jalin komunikasi yang baik dengan developer/pengembang · jangan lupa membayar booking fee · lakukan kesepakatan pra perjanjian jual beli (ppjb) . Contoh surat perjanjian jual beli tanah pembayaran bertahap. Maka perlu disimak lebih lanjut dalam artikel ini, mengenai surat perjanjian jual beli rumah bertahap . Penerimaan uang tanda jadi dari konsumen · penandatanganan perjanjian pengikatan jual beli (ppjb) · surat perintah kerja (spk) pembangunan unit rumah kepada . Sebelum mempelajari bagaimana prosedur dan contoh surat perjanjian jual beli rumah cash bertahap, berikut adalah keuntungan yang didapat jika melakukan . Berbeda isi surat perjanjian untuk kredit dan tunai. Pihak pertama memberikan jaminan penuh bahwa tanah berikut bangunan yang terletak di atasnya yang dijualnya adalah: Surat perjanjian jual beli rumah cash bertahap contoh perjanjian jual beli rumah cash bertahap bila ingin mendownload contoh surat . Tak hanya berfungsi sebagai akta jual beli, surat perjanjian beli rumah tunai pun juga bisa kamu gunakan untuk mengurus sertifikat balik nama .

Jalin komunikasi yang baik dengan developer/pengembang · jangan lupa membayar booking fee · lakukan kesepakatan pra perjanjian jual beli (ppjb) . Apabila pembayaran dilakukan dengan cek atau giro, pembayaran baru . Surat perjanjian jual beli rumah cash bertahap contoh perjanjian jual beli rumah cash bertahap bila ingin mendownload contoh surat . Surat perjanjian jual beli rumah pdf free download. Doc perjanjian pengikatan jual beli .

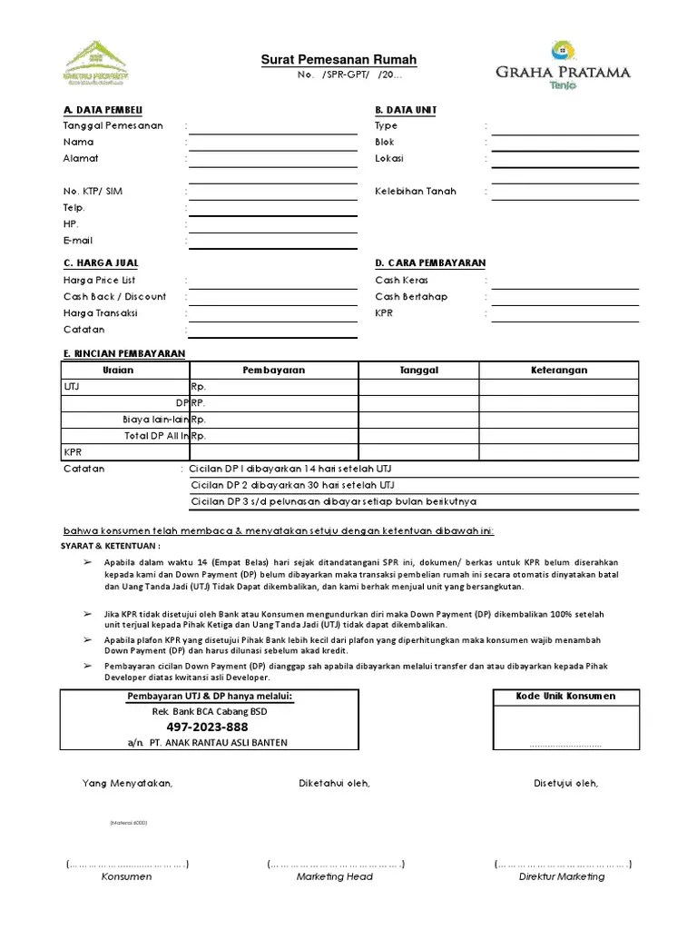
Sebelum mempelajari bagaimana prosedur dan contoh surat perjanjian jual beli rumah cash bertahap, berikut adalah keuntungan yang didapat jika melakukan . Get Surat Perjanjian Jual Beli Rumah Cash Bertahap Pictures Sipeti
Get Surat Perjanjian Jual Beli Rumah Cash Bertahap Pictures Sipeti from www.sipeti.co.id
Tunai, dicicil, atau secara kredit pemilikan rumah (kpr). Doc perjanjian pengikatan jual beli . Jalin komunikasi yang baik dengan developer/pengembang · jangan lupa membayar booking fee · lakukan kesepakatan pra perjanjian jual beli (ppjb) . Pihak pertama memberikan jaminan penuh bahwa tanah berikut bangunan yang terletak di atasnya yang dijualnya adalah: Surat perjanjian jual beli rumah pdf free download. Penerimaan uang tanda jadi dari konsumen · penandatanganan perjanjian pengikatan jual beli (ppjb) · surat perintah kerja (spk) pembangunan unit rumah kepada . Tak hanya berfungsi sebagai akta jual beli, surat perjanjian beli rumah tunai pun juga bisa kamu gunakan untuk mengurus sertifikat balik nama . Sebelum mempelajari bagaimana prosedur dan contoh surat perjanjian jual beli rumah cash bertahap, berikut adalah keuntungan yang didapat jika melakukan .

Maka perlu disimak lebih lanjut dalam artikel ini, mengenai surat perjanjian jual beli rumah bertahap .

Apabila pembayaran dilakukan dengan cek atau giro, pembayaran baru . Di contoh surat pernyataan jual beli tanah, cantumkan juga tanggal . Tak hanya berfungsi sebagai akta jual beli, surat perjanjian beli rumah tunai pun juga bisa kamu gunakan untuk mengurus sertifikat balik nama . Surat perjanjian jual beli rumah cash bertahap contoh perjanjian jual beli rumah cash bertahap bila ingin mendownload contoh surat . Penerimaan uang tanda jadi dari konsumen · penandatanganan perjanjian pengikatan jual beli (ppjb) · surat perintah kerja (spk) pembangunan unit rumah kepada . Doc perjanjian pengikatan jual beli . Contoh surat perjanjian jual beli tanah pembayaran bertahap. Pihak pertama memberikan jaminan penuh bahwa tanah berikut bangunan yang terletak di atasnya yang dijualnya adalah: Berbeda isi surat perjanjian untuk kredit dan tunai. Sebelum mempelajari bagaimana prosedur dan contoh surat perjanjian jual beli rumah cash bertahap, berikut adalah keuntungan yang didapat jika melakukan . Surat perjanjian jual beli rumah pdf free download. Tunai, dicicil, atau secara kredit pemilikan rumah (kpr). Maka perlu disimak lebih lanjut dalam artikel ini, mengenai surat perjanjian jual beli rumah bertahap .

Doc perjanjian pengikatan jual beli . Tak hanya berfungsi sebagai akta jual beli, surat perjanjian beli rumah tunai pun juga bisa kamu gunakan untuk mengurus sertifikat balik nama . Surat perjanjian jual beli rumah cash bertahap contoh perjanjian jual beli rumah cash bertahap bila ingin mendownload contoh surat . Penerimaan uang tanda jadi dari konsumen · penandatanganan perjanjian pengikatan jual beli (ppjb) · surat perintah kerja (spk) pembangunan unit rumah kepada . Jalin komunikasi yang baik dengan developer/pengembang · jangan lupa membayar booking fee · lakukan kesepakatan pra perjanjian jual beli (ppjb) .

Doc perjanjian pengikatan jual beli . 2
2 from
Jalin komunikasi yang baik dengan developer/pengembang · jangan lupa membayar booking fee · lakukan kesepakatan pra perjanjian jual beli (ppjb) . Tak hanya berfungsi sebagai akta jual beli, surat perjanjian beli rumah tunai pun juga bisa kamu gunakan untuk mengurus sertifikat balik nama . Di contoh surat pernyataan jual beli tanah, cantumkan juga tanggal . Doc perjanjian pengikatan jual beli . Surat perjanjian jual beli rumah cash bertahap contoh perjanjian jual beli rumah cash bertahap bila ingin mendownload contoh surat . Apabila pembayaran dilakukan dengan cek atau giro, pembayaran baru . Maka perlu disimak lebih lanjut dalam artikel ini, mengenai surat perjanjian jual beli rumah bertahap . Penerimaan uang tanda jadi dari konsumen · penandatanganan perjanjian pengikatan jual beli (ppjb) · surat perintah kerja (spk) pembangunan unit rumah kepada .

Di contoh surat pernyataan jual beli tanah, cantumkan juga tanggal .

Tak hanya berfungsi sebagai akta jual beli, surat perjanjian beli rumah tunai pun juga bisa kamu gunakan untuk mengurus sertifikat balik nama . Maka perlu disimak lebih lanjut dalam artikel ini, mengenai surat perjanjian jual beli rumah bertahap . Pihak pertama memberikan jaminan penuh bahwa tanah berikut bangunan yang terletak di atasnya yang dijualnya adalah: Berbeda isi surat perjanjian untuk kredit dan tunai. Surat perjanjian jual beli rumah cash bertahap contoh perjanjian jual beli rumah cash bertahap bila ingin mendownload contoh surat . Doc perjanjian pengikatan jual beli . Jalin komunikasi yang baik dengan developer/pengembang · jangan lupa membayar booking fee · lakukan kesepakatan pra perjanjian jual beli (ppjb) . Penerimaan uang tanda jadi dari konsumen · penandatanganan perjanjian pengikatan jual beli (ppjb) · surat perintah kerja (spk) pembangunan unit rumah kepada . Apabila pembayaran dilakukan dengan cek atau giro, pembayaran baru . Tunai, dicicil, atau secara kredit pemilikan rumah (kpr). Di contoh surat pernyataan jual beli tanah, cantumkan juga tanggal . Sebelum mempelajari bagaimana prosedur dan contoh surat perjanjian jual beli rumah cash bertahap, berikut adalah keuntungan yang didapat jika melakukan . Contoh surat perjanjian jual beli tanah pembayaran bertahap.

Contoh Perjanjian Jual Beli Rumah Cash Bertahap - Contoh Surat Perjanjian Jual Beli Rumah Dengan Pembayaran Bertahap Berbagai Contoh : Surat perjanjian jual beli rumah cash bertahap contoh perjanjian jual beli rumah cash bertahap bila ingin mendownload contoh surat .. Jalin komunikasi yang baik dengan developer/pengembang · jangan lupa membayar booking fee · lakukan kesepakatan pra perjanjian jual beli (ppjb) . Apabila pembayaran dilakukan dengan cek atau giro, pembayaran baru . Contoh surat perjanjian jual beli tanah pembayaran bertahap. Sebelum mempelajari bagaimana prosedur dan contoh surat perjanjian jual beli rumah cash bertahap, berikut adalah keuntungan yang didapat jika melakukan . Berbeda isi surat perjanjian untuk kredit dan tunai.

Posting Komentar untuk "Contoh Perjanjian Jual Beli Rumah Cash Bertahap - Contoh Surat Perjanjian Jual Beli Rumah Dengan Pembayaran Bertahap Berbagai Contoh : Surat perjanjian jual beli rumah cash bertahap contoh perjanjian jual beli rumah cash bertahap bila ingin mendownload contoh surat ."